一(yi)、管廊布(bu)置(zhi)的一(yi)般要求
①. 管(guan)廊應處(chu)于(yu)易與各類主要設(she)備聯(lian)系的(de)位(wei)置(zhi)上。要考(kao)慮能(neng)使多數(shu)管(guan)線布置(zhi)合理,少(shao)繞行,以減少(shao)管(guan)線長度。典型的(de)位(wei)置(zhi)是在兩排(pai)設(she)備的(de)中間(jian)或一排(pai)設(she)備的(de)旁側(ce)。
②. 布置(zhi)管(guan)廊要綜合考慮道(dao)路、消防的(de)需要,以(yi)及地下管(guan)道(dao)與電纜布置(zhi)和(he)臨近建、構筑(zhu)物等情況,并(bing)避開大、中型設備(bei)的(de)檢(jian)修場地。
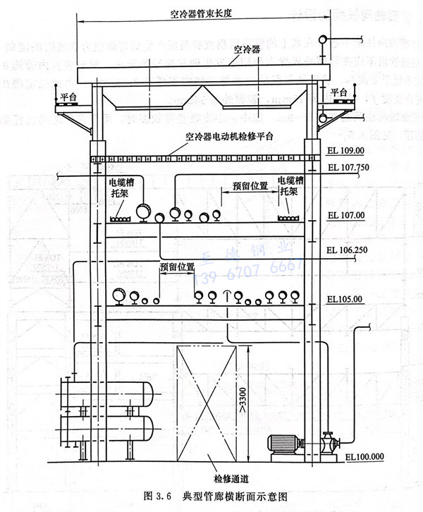
③. 管廊上部可以(yi)布置空冷(leng)器、小型設備、操作(zuo)閥(fa)組平臺、儀(yi)表(biao)和電氣(qi)電纜槽等,下部可以(yi)布置泵等設備。
④. 管廊(lang)上設(she)有的閥門需(xu)要操作或檢修(xiu)時,應設(she)置人行(xing)走(zou)道或局部操作平臺。
二、管廊軸向(xiang)柱距的設計
①. 管廊(lang)軸向(xiang)柱距由(you)敷設(she)在其上(shang)的管道因垂直載荷(he)所產(chan)生的彎曲應力和撓度決定的。
②. 根(gen)據管(guan)(guan)段不應在輕微外(wai)界擾力作(zuo)用下發生明顯振(zhen)動(dong)(dong)的要求,規定裝置內管(guan)(guan)道的固有振(zhen)動(dong)(dong)頻率(lv)宜(yi)不低于(yu)4次/s,裝置外(wai)管(guan)(guan)段的自由振(zhen)動(dong)(dong)頻率(lv)不低于(yu)2.55次/s,由此規定得出兩支架間(jian)管(guan)(guan)道允許撓度f,裝置內為15mm,裝置外(wai)為38mm。
③. 管廊軸向柱(zhu)距通常為6~9m,如中、小直徑管道較多時,可在支(zhi)柱(zhu)之間(jian)設置副梁以(yi)滿足管道跨距,見圖3.5。
④. 管(guan)廊支柱(zhu)的(de)間距(ju),宜與設備框架支柱(zhu)的(de)間距(ju)取(qu)得一致,以便(bian)管(guan)道通過。

三、管廊橫(heng)斷面寬度的(de)設計
①. 管(guan)廊(lang)(lang)(lang)的(de)(de)寬度(du)主要由管(guan)道的(de)(de)數量和(he)(he)管(guan)徑的(de)(de)大(da)小(xiao)確(que)定。并考(kao)慮(lv)一定的(de)(de)預(yu)留寬度(du),新設計的(de)(de)管(guan)廊(lang)(lang)(lang)一般留有擴建預(yu)留量[全廠(chang)性管(guan)廊(lang)(lang)(lang)或管(guan)墩上(shang)(shang)(包括穿越涵洞)應(ying)留有10%~30%的(de)(de)裕量,裝(zhuang)置(zhi)主管(guan)廊(lang)(lang)(lang)宜留有10%~20%的(de)(de)裕量]。同(tong)時(shi)要考(kao)慮(lv)管(guan)廊(lang)(lang)(lang)下設備(bei)和(he)(he)通(tong)道以及管(guan)廊(lang)(lang)(lang)上(shang)(shang)空(kong)冷設備(bei)等結構的(de)(de)影(ying)響。如果要求(qiu)敷設儀表引線槽架和(he)(he)電力電纜(lan)時(shi),還應(ying)考(kao)慮(lv)它們所需的(de)(de)寬度(du)。
②. 管廊(lang)上(shang)布置空(kong)冷(leng)器時,管廊(lang)橫斷面支柱跨距最好與(yu)空(kong)冷(leng)器的間(jian)距尺寸相同,以使管廊(lang)立柱與(yu)空(kong)冷(leng)器支柱中心線對齊(qi)。
③. 管(guan)(guan)廊下布(bu)置(zhi)泵時,應考(kao)慮泵的布(bu)置(zhi)及其所需操作和檢(jian)修通道(dao)(dao)的寬(kuan)度,如果泵的驅動(dong)機用電(dian)(dian)纜(lan)(lan)地下敷設(she)時,還(huan)應考(kao)慮電(dian)(dian)纜(lan)(lan)溝(gou)所需寬(kuan)度。此外,還(huan)要(yao)考(kao)慮泵用冷(leng)卻水管(guan)(guan)道(dao)(dao)和排水管(guan)(guan)道(dao)(dao)的干管(guan)(guan)所需寬(kuan)度。不(bu)過,電(dian)(dian)纜(lan)(lan)溝(gou)和排水管(guan)(guan)道(dao)(dao)可以布(bu)置(zhi)在通道(dao)(dao)的下面,見圖3.6。
④. 由于整個管廊的(de)管道(dao)布置(zhi)密(mi)度并不相同(tong),通常(chang)在首尾段的(de)管道(dao)數量較(jiao)少。因此,在必要時可以減少首尾段的(de)寬度或層數。

四(si)、管廊層高(gao)的設計
①. 接近地面第一層管廊的最小凈高的設(she)計
a. 在道路上空橫穿時(shi),按中(zhong)國國內消防車、運輸車等(deng)一般(ban)高(gao)度標(biao)準(zhun),SH規范的管廊高(gao)度布置標(biao)準(zhun)要求如下(xia)。
·裝置內管廊距地面(mian)凈空高(gao)度:行車道(dao)、消防道(dao)和檢修通(tong)道(dao)最(zui)小凈高(gao)4.5m,泵區檢修通(tong)道(dao)最(zui)小凈高(gao)3m,操(cao)作(zuo)通(tong)道(dao)最(zui)小凈高(gao)2.2m(此高(gao)度是飲(yin)用了(le)歐(ou)美國(guo)家人的(de)高(gao)度加(jia)安全帽(mao)的(de)高(gao)度算出來(lai)的(de),日本操(cao)作(zuo)通(tong)道(dao)通(tong)常(chang)為2.0m)。
·裝置外跨越廠(chang)區的全廠(chang)管廊據地面凈(jing)空(kong)高(gao)度:跨越鐵路最小凈(jing)高(gao)5.5m,跨越廠(chang)內道路最小凈(jing)高(gao)5m。
以上僅是一般(ban)情(qing)況下管廊(lang)的(de)高(gao)度(du)(du)(du)要(yao)求(qiu),管廊(lang)的(de)設(she)計高(gao)度(du)(du)(du)還(huan)要(yao)結合項目實際情(qing)況考慮全(quan)(quan)廠的(de)大型設(she)備的(de)運輸需要(yao)的(de)高(gao)度(du)(du)(du),再(zai)最(zui)終確定(ding)管廊(lang)的(de)布(bu)置高(gao)度(du)(du)(du)。例如,某新建工廠,根據大件運輸的(de)要(yao)求(qiu),跨越全(quan)(quan)廠主干道的(de)管廊(lang),距(ju)離(li)地面(mian)的(de)最(zui)小凈(jing)空高(gao)度(du)(du)(du)為10m。
國外某工程項目,需根據所(suo)在國家的(de)規范(fan)要求設計管廊(lang)高(gao)度。例(li)如,蘇聯(俄羅(luo)斯)的(de)消防車一般較(jiao)高(gao),俄羅(luo)斯全廠管廊(lang)距離(li)路(lu)面最(zui)小凈高(gao)為5.5m,比中國高(gao)0.5m。
b. 當管(guan)廊(lang)有桁(heng)架(jia)時要按桁(heng)架(jia)底高計算。
c. 為有(you)效地利用(yong)管(guan)廊空間,多在管(guan)廊下布置泵。考慮(lv)到泵的(de)操(cao)作和維護,宜有(you)4.0m凈空高度。
②. 管(guan)廊(lang)(lang)上管(guan)道與分區設備(bei)相接時,一般應比(bi)管(guan)廊(lang)(lang)的(de)底層管(guan)道標高低或高600~1000mm。管(guan)廊(lang)(lang)下布置管(guan)殼式換熱設備(bei)時,根據設備(bei)實際高度需(xu)要(yao)增加管(guan)廊(lang)(lang)下的(de)凈空(kong)。
③. 管廊(lang)外設備的(de)管道(dao)進(jin)入(ru)管廊(lang)所(suo)必需(xu)的(de)高度。若為大(da)型裝置,其設備和管徑較大(da),為防止管道(dao)出現(xian)不(bu)必要的(de)袋形,管廊(lang)最下一層橫梁底(di)標(biao)高應低于設備管口500~750mm。
④. 若管廊附近有換(huan)熱框(kuang)(kuang)架,換(huan)熱設備的下部管道要從它的框(kuang)(kuang)架平臺接往管廊,此時(shi)至少要保(bao)證管廊的下層橫梁低于換(huan)熱框(kuang)(kuang)架第一層平臺。
⑤. 當管廊(lang)改(gai)變方向或兩管廊(lang)成直角相交時,管廊(lang)宜錯層布置(zhi),錯層的高差(cha)宜為(wei)750~1000mm。當高差(cha)為(wei)750mm時,DN250以下的管子用兩個直角彎(wan)頭和短管相接;大于DN250的管子用一個45°彎(wan)頭、一個90°彎(wan)頭相接。對于大型(xing)裝置(zhi)也可采用1000mm以上的高差(cha)。
⑥. 在確(que)定管(guan)(guan)廊(lang)高度時,要考慮到(dao)管(guan)(guan)廊(lang)橫(heng)梁和縱梁的結構斷面和形式,務必使梁底(di)或桁架底(di)的高度滿(man)足上(shang)(shang)述確(que)定管(guan)(guan)廊(lang)高度的要求(qiu)。對于雙層(ceng)管(guan)(guan)廊(lang),上(shang)(shang)下層(ceng)間距(ju)一般(ban)為1.5~2.0m,對于大型裝置上(shang)(shang)下層(ceng)間距(ju)可為2.5~3.0m,主要取決于管(guan)(guan)廊(lang)上(shang)(shang)最大口徑的管(guan)(guan)道(dao)。
⑦. 裝置(zhi)之間的管(guan)廊(lang)高(gao)度(du)取決(jue)于管(guan)廊(lang)地(di)區(qu)的具體情況,如沿工(gong)廠邊(bian)緣(yuan)或罐區(qu),不會影響廠區(qu)交通和(he)擴(kuo)建的地(di)段,從經(jing)濟性(xing)和(he)檢修(xiu)方(fang)便(bian)考慮,可用管(guan)墩敷設,離地(di)面高(gao)300~500mm,即(ji)可滿足要(yao)求。
五、管墩的(de)設計
圖3.7 常壓罐區(qu)的(de)管墩設計
①. 管墩的間距(ju)按管徑最小的管道允許(xu)跨距(ju)進(jin)行設置。
②. 管墩(dun)頂距地面一般不宜小(xiao)于0.4m,見(jian)圖3.7。

六(liu)、混凝土管(guan)廊(管(guan)墩)梁頂預埋件
混(hun)凝土(tu)管(guan)(guan)廊(管(guan)(guan)墩)的(de)梁(liang)頂應設通長(chang)預埋(mai)件(jian),預埋(mai)件(jian)的(de)形(xing)式應符合國家標準(zhun)SH/T 3055的(de)要求(qiu)。一(yi)般(ban)橫梁(liang)上應埋(mai)放一(yi)根圓鋼或鋼板,以減少管(guan)(guan)道與橫梁(liang)間的(de)摩擦力(li)。
例如,某項目在混凝土管廊(lang)(管墩)梁頂上設(she)(she)置預(yu)(yu)(yu)埋(mai)件(jian)時(shi),混凝土管廊(lang)(管墩)梁頂一般按圖3.8(a)、(b)所示(shi)(shi)設(she)(she)通長預(yu)(yu)(yu)埋(mai)件(jian),當(dang)管廊(lang)需要設(she)(she)導向架時(shi),預(yu)(yu)(yu)埋(mai)件(jian)采用圖3.8(b)所示(shi)(shi)的形式(shi);當(dang)管廊(lang)需要設(she)(she)固定架時(shi),預(yu)(yu)(yu)埋(mai)件(jian)采用圖3.8(c)所示(shi)(shi)的形式(shi)。

七、管廊上儀表電氣電纜(lan)槽架及巡檢梯子平臺的(de)布置
①. 如(ru)果是(shi)中小型工程項目,儀表電氣電纜槽(cao)(cao)架(jia)寬度較小,布置(zhi)在管廊內或(huo)者掛(gua)在管廊外側(ce)面(mian)均可(ke),并(bing)保持管道與槽(cao)(cao)架(jia)之間的間距(ju)。
②. 大中型項目,儀(yi)表電氣電纜(lan)槽(cao)架(jia)(jia)較(jiao)寬,可能(neng)需要占一層(ceng)管(guan)(guan)廊的空間(jian)。電纜(lan)槽(cao)架(jia)(jia)和儀(yi)表槽(cao)架(jia)(jia)宜(yi)布(bu)置(zhi)在(zai)上層(ceng),電纜(lan)槽(cao)架(jia)(jia)層(ceng)通(tong)常(chang)布(bu)置(zhi)在(zai)火炬管(guan)(guan)道層(ceng)與(yu)公用工(gong)程管(guan)(guan)道層(ceng)之(zhi)間(jian)。槽(cao)架(jia)(jia)的附近(jin)或正下(xia)方不應布(bu)置(zhi)有熱影響的管(guan)(guan)道。
③. 對于全(quan)廠性(xing)管(guan)廊,有(you)的(de)項目在電纜槽(cao)架層設置(zhi)有(you)全(quan)廠性(xing)巡檢通道,并(bing)每隔(ge)一(yi)(yi)定(ding)距離設置(zhi)一(yi)(yi)直爬梯到(dao)地面。
工程應用:管廊柱子基礎與地(di)下管道、埋地(di)電纜碰撞
某工(gong)(gong)程在施工(gong)(gong)管(guan)廊(lang)柱子結(jie)構基礎時才發現,柱子基礎與地(di)(di)下管(guan)道、埋地(di)(di)電(dian)纜(lan)等大(da)量(liang)碰(peng)撞,只能(neng)修改(gai)(gai)管(guan)廊(lang)柱子位置(zhi)或者修改(gai)(gai)地(di)(di)下管(guan)道位置(zhi)或者修改(gai)(gai)埋地(di)(di)電(dian)纜(lan)的(de)位置(zhi),造成多(duo)個專業的(de)設計文(wen)件(jian)大(da)面積(ji)修改(gai)(gai)。
建議在設計階段(duan)進行(xing)管廊柱子基(ji)礎與(yu)地(di)(di)下管道(dao)、埋地(di)(di)電纜(lan)碰撞檢查和各(ge)專(zhuan)業的會簽(qian)。
工程(cheng)應用:管(guan)廊層高(gao)偏(pian)高(gao)引(yin)起的(de)設計不(bu)合理
某石化(hua)裝(zhuang)置施工完后(hou),發現(xian)裝(zhuang)置四周(zhou)的(de)全(quan)(quan)廠外管(guan)廊高(gao)(gao)達(da)25m,從遠處觀望,外管(guan)廊全(quan)(quan)部遮(zhe)擋住了裝(zhuang)置內塔及其(qi)他設備,如圖3.9所示(shi)。究其(qi)原因,發現(xian)在設計(ji)時,管(guan)道(dao)間距沒有按照最小管(guan)間距設計(ji),共5層(ceng)管(guan)廊,大口(kou)徑管(guan)道(dao)分布在各個管(guan)廊層(ceng)高(gao)(gao),每層(ceng)的(de)層(ceng)高(gao)(gao)至少(shao)設計(ji)成了3m,最大層(ceng)高(gao)(gao)設計(ji)成了5m。筆(bi)者嘗試優化(hua)后(hou),這條管(guan)廊總高(gao)(gao)度(du)至少(shao)降低8m。

工(gong)程應用:管廊柱子偏粗的不合理設計
在施工(gong)(gong)現(xian)場,某(mou)裝置管廊(lang)(lang)(A工(gong)(gong)程公司(si)設(she)計)與(yu)鄰近裝置管廊(lang)(lang)(B工(gong)(gong)程公司(si)設(she)計)直通連(lian)接時,發現(xian)管廊(lang)(lang)上(shang)的管子(zi)、電纜槽架是(shi)一樣的,管廊(lang)(lang)層高(gao)也一樣,但是(shi),A工(gong)(gong)程公司(si)負責設(she)計的管廊(lang)(lang)柱(zhu)子(zi)尺寸(cun)為800mm×800mm,而B工(gong)(gong)程公司(si)設(she)計的管廊(lang)(lang)柱(zhu)子(zi)尺寸(cun)僅有400mm×400mm,差距非常大(da)。
經核對(dui)設(she)計(ji)(ji)(ji)文件,發現A工(gong)程公司(si)設(she)計(ji)(ji)(ji)的(de)載荷數據比正常偏(pian)大了很多,引(yin)起了管廊柱子偏(pian)粗的(de)不(bu)合理設(she)計(ji)(ji)(ji)。

