以某煉油項目裝置(zhi)作為一個實例,列(lie)出了(le)在(zai)已(yi)有工廠中開展新(xin)裝置(zhi)平面布置(zhi)設計的步(bu)驟(zou)。通過(guo)例子(zi)展示了(le)某些(xie)推薦的做法和布置(zhi)設計的原(yuan)則。
一、裝置設備布置設計要求(qiu)的一般(ban)資料
當開始做裝置設備平面布(bu)置圖時,需要從(cong)工程設計項(xiang)目組及(ji)工藝、設備、儀表、電氣、總圖等(deng)專業得(de)到下(xia)列資料。
①. 新裝置(zhi)區域附近現(xian)場資料(在某些設計單位,這些條件由(you)總(zong)圖專業供給管道專業)。
a. 工程(cheng)(cheng)設計(ji)資料(liao)(包括(kuo)新裝(zhuang)置區域現場平面圖,地上或地下設施(shi),水、電、汽等公用工程(cheng)(cheng)條(tiao)件,選用的防火(huo)規(gui)范、安全距離、噪聲控制的標(biao)準等)。
b. 常年(nian)最小頻率風(feng)向。
c. 裝置及(ji)進出管線(xian)建(jian)議的位置。
d. 電纜(lan)進出(chu)口位置。
e. 新(xin)裝置區附近的道路、鐵路等交通(tong)條(tiao)件及其詳圖。
f. 裝(zhuang)置的基準點位(wei)置。
g. 裝置的指北(bei)向。
h. 檢修用吊車的能力(li)和尺寸。
i. 消防車通道。
②. 從(cong)其他專業得到的(de)資料。
a. 工藝(yi)流程圖或管道(dao)-儀(yi)表流程圖。
b. 設備(bei)(bei)表(biao)及(ji)設備(bei)(bei)尺寸。例如:大型儲罐的(de)(de)直(zhi)徑、高(gao)度或(huo)容量;加熱爐(lu)的(de)(de)外形尺寸、形式,煙(yan)囪(cong)是獨立的(de)(de)還是安裝在(zai)加熱爐(lu)頂部(bu),煙(yan)囪(cong)尺寸;壓縮(suo)機的(de)(de)形式、外形尺寸,其密封油(you)、潤滑油(you)系統的(de)(de)布置,輔助(zhu)設備(bei)(bei)的(de)(de)布置;泵的(de)(de)形式、外形尺寸,驅動機的(de)(de)形式和要(yao)求(qiu);各(ge)種(zhong)非定型設備(bei)(bei)的(de)(de)規格,包括塔(ta)器、換熱器、容器等。
c. 設備安(an)裝(zhuang)和檢修(xiu)要求(qiu)。例(li)如(ru):塔的(de)最小安(an)裝(zhuang)高(gao)度(從地(di)(di)面至塔底(di)封頭切線(xian)(xian)處(chu));有重力流或固(gu)體(ti)卸料的(de)立(li)式或臥式容(rong)器的(de)安(an)裝(zhuang)標(biao)高(gao)要求(qiu)(立(li)式的(de)指底(di)部封頭切線(xian)(xian)處(chu)至地(di)(di)面的(de)距(ju)離(li),臥式的(de)指儲槽底(di)部至地(di)(di)面的(de)距(ju)離(li));換熱(re)器管束(shu)抽芯所(suo)需空間;壓縮機、泵或其(qi)他(ta)回轉設備拆卸和更換零部件的(de)要求(qiu)。
③. 空冷(leng)器形(xing)式和(he)(he)外形(xing)尺(chi)寸(cun)需要和(he)(he)工(gong)藝專(zhuan)業協(xie)商,因(yin)為空冷(leng)器通常安裝在(zai)管廊的(de)上方(fang),管廊的(de)尺(chi)寸(cun)要和(he)(he)空冷(leng)器的(de)規格相適應。
通常(chang)在管廊的下方布置泵,需(xu)要泵的型號、規格、外(wai)形尺寸及泵的吸入口和排(pai)出口管線連接(jie)尺寸,如(ru)能提供樣(yang)本更(geng)好。
二(er)、對(dui)工藝流程圖的研(yan)究
作平(ping)面布置圖時,工藝流程圖已準備好(圖5-97)。

請(qing)工藝設計(ji)人員(yuan)介紹(shao)裝置的(de)工藝流程,并研究出直接(jie)影(ying)響設備布置的(de)若干結論,例如下面所列內(nei)容。

①. 設備布置要順流程。原油加料泵P-101要緊(jin)貼(tie)裝置西邊界管(guan)線進出口(kou)“A”。因為原油管(guan)線從“A”處進入裝置(圖(tu)5-98)。
②. 泵應布(bu)置在(zai)相應的設備附近,以免泵吸入管線壓(ya)降(jiang)太大。
③. 要(yao)(yao)滿足大型(xing)設備布置上(shang)的要(yao)(yao)求。如加熱爐F-101,要(yao)(yao)保證(zheng)安全(quan)距(ju)離。另外,燃料(liao)管線用分(fen)配臺分(fen)配,進口接管多,故爐子周圍要(yao)(yao)有足夠(gou)的空間。
④. 關鍵管(guan)(guan)線(xian)(xian)(xian)的柔性要(yao)求,在(zai)布置(zhi)階段請應(ying)力分析人員協助(zhu),例如:加熱(re)爐的轉油管(guan)(guan)線(xian)(xian)(xian)是高溫合金管(guan)(guan)線(xian)(xian)(xian),要(yao)盡可能(neng)短(duan),且沒有袋形;T-101塔(ta)底管(guan)(guan)線(xian)(xian)(xian)是高溫的,要(yao)考慮管(guan)(guan)線(xian)(xian)(xian)的柔性以(yi)及備用泵的熱(re)的和(he)(he)冷(leng)的工況;進出汽提塔(ta)T-102和(he)(he)T-103的管(guan)(guan)線(xian)(xian)(xian)盡可能(neng)短(duan);汽提塔(ta)至火炬(ju)系統的泄壓管(guan)(guan)線(xian)(xian)(xian)應(ying)盡可能(neng)短(duan)。
⑤. 設備布置要(yao)考慮配管(guan)(guan)(guan)要(yao)求(qiu),例(li)如:從(cong)T-101至E-115的架空管(guan)(guan)(guan)線(xian)(xian)應避免(mian)有袋形,在滿足管(guan)(guan)(guan)線(xian)(xian)柔性和塔膨(peng)脹的前提(ti)下,管(guan)(guan)(guan)線(xian)(xian)走向應簡單些;從(cong)E-115至V-101的冷凝液(ye)管(guan)(guan)(guan)線(xian)(xian)應避免(mian)有袋形;從(cong)V-101至壓(ya)縮機C-101的氣(qi)體管(guan)(guan)(guan)線(xian)(xian)盡可能(neng)短(duan),避免(mian)有袋形。
三(san)、平面布置(zhi)圖的編制
在完成(cheng)工藝(yi)流程圖的(de)研究后,進一步(bu)檢查新(xin)收(shou)到(dao)的(de)各專業的(de)資料(liao)是否有(you)其他的(de)要求。開始平面布置圖的(de)設計。
①. 如(ru)工程沒有(you)特殊的要求,裝置的操(cao)作通(tong)道、檢修通(tong)道及(ji)平臺(tai)的設置等均按設計規范確定,下列各項在(zai)設計中應予(yu)遵循。
a. 裝置檢(jian)修(xiu)時,需(xu)汽(qi)車(che)(吊車(che))通過的主(zhu)要(yao)檢(jian)修(xiu)通道上方(fang)最(zui)小凈空4.5m。
b. 裝置(zhi)四周環形道路(lu)上方最(zui)小凈空(kong)5.0m,鐵軌上方最(zui)小凈空(kong)5.5m(SH 3012-2000)。
c. 泵(beng)的操作溫度(du)340℃或340℃以(yi)(yi)上時,不能(neng)布置(zhi)在(zai)(zai)管廊下,應布置(zhi)在(zai)(zai)距(ju)管廊外側3m以(yi)(yi)外。泵(beng)的操作溫度(du)在(zai)(zai)340℃以(yi)(yi)下時,可布置(zhi)在(zai)(zai)管廊下,必(bi)須(xu)考慮(lv)泵(beng)和驅動(dong)機的檢修,泵(beng)上方最(zui)小凈空3m。
d. 通(tong)常(chang),空冷(leng)器布置在(zai)管廊上。
e. 儲存(cun)烴類(lei)設備的支架及輸送烴類(lei)管道的管廊支柱應進行防火保護的處(chu)理。
②. 要考慮運輸、安(an)裝(zhuang)設(she)備(bei)的(de)(de)位置(zhi)。道路或通道要有足(zu)夠的(de)(de)空間,以滿足(zu)大型設(she)備(bei)的(de)(de)運輸和安(an)裝(zhuang)。
③. 進行初步的設備布置(zhi)。如圖5-98所示(shi),用方塊的形式(shi)繪出(chu)管廊、加熱(re)爐(lu)、蒸餾塔、框架、控制室(shi)等(deng)的位置(zhi)。這張布置(zhi)圖討論通過,即可開始設計正式(shi)的平(ping)面布置(zhi)圖。
④. 繪制平面布置圖的(de)步驟。
a. 在裝置設(she)備布置區域(yu)內(nei)確(que)定管(guan)廊(lang)的布置。
b. 加(jia)熱爐的(de)布置。
c. 控制室的(de)布(bu)置。
d. 主要(yao)設備(bei)的布(bu)置,包括分餾塔、空冷器、大(da)型容(rong)器、壓縮機、泵等(deng)。
全部設備布置完成后,經校驗(yan),并適(shi)當調(diao)整,使用(yong)計算(suan)機繪(hui)出(chu)正式平面布置圖。
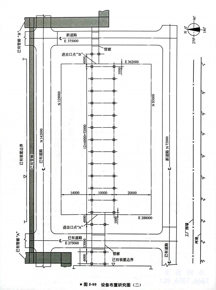
四、裝置管廊的布置
裝置管廊的(de)位置必須(xu)優先考(kao)慮,因為它(ta)會影響設備的(de)布置。
圖5-99表示了新裝置(zhi)(zhi)管廊的位(wei)置(zhi)(zhi)與已有(you)管廊的關系,下面敘(xu)述如(ru)何布置(zhi)(zhi)管廊。

①. 首先(xian)應與土(tu)建協商確定結構(gou)材料(liao),是使用鋼筋混凝(ning)土(tu)的還是鋼結構(gou)的。鋼筋混凝(ning)土(tu)的較(jiao)為(wei)經濟。
②. 管廊(lang)的柱距6m,可滿足(zu)DN80和(he)DN80以(yi)上的管線,不需要(yao)中(zhong)間(jian)(jian)支承(cheng)。管廊(lang)下(xia)兩個柱距之間(jian)(jian)可布置兩臺中(zhong)型的泵。
③. 管(guan)(guan)(guan)(guan)廊(lang)的(de)寬(kuan)(kuan)度,首先應明(ming)確(que)管(guan)(guan)(guan)(guan)廊(lang)上是(shi)否安(an)裝(zhuang)(zhuang)空冷器(qi)。若安(an)裝(zhuang)(zhuang)空冷器(qi),管(guan)(guan)(guan)(guan)廊(lang)的(de)寬(kuan)(kuan)度由(you)空冷器(qi)的(de)管(guan)(guan)(guan)(guan)長(chang)決定(ding)。若管(guan)(guan)(guan)(guan)廊(lang)上沒(mei)有空冷器(qi),則作完管(guan)(guan)(guan)(guan)線走(zou)向草圖后,根據管(guan)(guan)(guan)(guan)子排列寬(kuan)(kuan)度,再預(yu)留(liu)20%的(de)裕量[全廠性管(guan)(guan)(guan)(guan)廊(lang)或管(guan)(guan)(guan)(guan)墩上(包(bao)括穿越涵洞)應留(liu)有10%~30%的(de)裕量,裝(zhuang)(zhuang)置主管(guan)(guan)(guan)(guan)廊(lang)宜留(liu)有10%~20%的(de)裕量],并考慮管(guan)(guan)(guan)(guan)廊(lang)下設備檢修的(de)最小通道,確(que)定(ding)管(guan)(guan)(guan)(guan)廊(lang)的(de)寬(kuan)(kuan)度。
④. 根據已有(you)管廊(lang)(lang)的位置(zhi),新裝(zhuang)置(zhi)管廊(lang)(lang)東(dong)、西向布(bu)置(zhi)較為合理。管廊(lang)(lang)的柱子邊緣距道路不應小于(yu)1m。
⑤. 加熱爐應放在常年最(zui)小頻率風向的下風側,位(wei)于管廊(lang)(lang)南側(圖5-100)。爐子(zi)所(suo)占面積較大(da),總寬度為10m,其四周(zhou)要設置(zhi)平臺,從裝置(zhi)南邊界(jie)線(xian)往北20m設管廊(lang)(lang)第一(yi)排柱子(zi)。

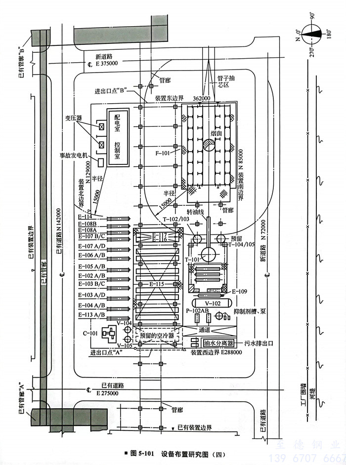
五、主要設備(bei)的(de)布置(zhi)
1. 原油加熱(re)爐F-101的布(bu)置(圖5-101)

原(yuan)油加(jia)熱爐(lu)是長23m寬10m的箱式爐(lu),煙囪和加(jia)熱爐(lu)組(zu)裝在一(yi)起。
加熱爐布置的要點(dian)如下:
①. 位于常年最(zui)小頻率(lv)風向的(de)下風側。
②. 加熱爐周圍保(bao)持15m的安全距(ju)離。
③. 對流段(duan)管(guan)束抽芯所需要(yao)的空間,在布置圖(tu)上要(yao)表示出,抽芯區(qu)域內不得有任(ren)何障(zhang)礙物。
④. 為(wei)便于施(shi)工(gong)安(an)裝(zhuang),加熱爐應位于主要道(dao)路旁(pang)。
2. 控制室的布置(zhi)(圖5-101)
確(que)定(ding)控制(zhi)(zhi)室的位置(zhi)時(shi)應(ying)考慮安全性(xing),控制(zhi)(zhi)室應(ying)離逸出可燃性(xing)氣體的設(she)備有(you)15m的距離。在(zai)有(you)的設(she)計(ji)單位,控制(zhi)(zhi)室的布置(zhi)是(shi)由總圖專(zhuan)業完成(cheng)的。
3. 分餾塔(ta)T-101及有關(guan)設(she)備的布置(zhi)(圖5-101)
從加(jia)熱爐F-101到塔T-101的(de)轉油(you)線是(shi)(shi)一根關鍵管(guan)線,盡可(ke)能短些,因為管(guan)口(kou)是(shi)(shi)在爐子的(de)西面,所以(yi)T-101在F-101的(de)西面是(shi)(shi)合(he)理的(de)。
汽提塔T-102 和(he)T-103 緊靠T-101。
如(ru)圖5-101所示(shi),應按工藝流程和重力流要求布置設備。從T-101來(lai)的塔頂(ding)管線經(jing)換熱器E-101至空冷(leng)器E-115,再經(jing)冷(leng)凝器E-110到儲槽V-101。
在(zai)正式畫平面布置圖以前,先畫一張草(cao)圖。研究所有設備安裝和檢(jian)修是否可行(xing)。
4. 空冷器的布置
大型空(kong)冷器E-115放(fang)在(zai)中(zhong)間,便于(yu)從E-101來(lai)的管線敷設。
管(guan)線(xian)(xian)的(de)走(zou)向要和流程一(yi)致。因(yin)為煤油和輕組分油管(guan)線(xian)(xian)在裝(zhuang)置東邊界(jie)進出(chu)口點“B”連(lian)接,故空冷器E-116和E-117放在E-115的(de)東邊。
便于擴(kuo)建時預(yu)留(liu)空(kong)(kong)冷(leng)器的安裝,預(yu)留(liu)的空(kong)(kong)冷(leng)器放在E-115的西邊。
5. 脫鹽水V-102及有(you)關設備的布置(圖(tu)5-101)
V-102是一個(ge)大(da)型設(she)備,直徑(jing)3m,切線至切線長度為11m,加上球形封頭總長為14m。因(yin)為管廊至南邊(bian)界(jie)線的距離是20m,可放(fang)置脫鹽器,故把V-102放(fang)在(zai)管廊的南邊(bian)。
換(huan)熱(re)器(qi)E-102、E-103和E-104布置在管廊(lang)的北面,因為原油進料管線(xian)從西面進入后(hou),經(jing)換(huan)熱(re)器(qi)后(hou)進入脫鹽器(qi)。
加(jia)熱爐(lu)加(jia)料泵P-102旁布置抑制(zhi)劑(ji)配制(zhi)設備。脫鹽器人口要加(jia)入(ru)抑制(zhi)劑(ji),配制(zhi)設備放(fang)在這里,袋子(zi)拆卸方便。
6. 原油預(yu)熱器群的布(bu)置(zhi)(圖5-100和圖5-101)
換熱器E-105、E-106、E-107放在(zai)管廊的北面換熱器區(qu)域內,和E-102、E-103、E-104排成(cheng)一行(xing)。
這些換熱器(qi)的(de)布(bu)置,不(bu)能妨礙換熱器(qi)周(zhou)圍的(de)檢(jian)修通道(dao),并(bing)要(yao)提(ti)供足夠(gou)的(de)管束抽芯(xin)空間(jian)。在管廊和換熱器(qi)之間(jian)要(yao)有足夠(gou)的(de)距離,以便(bian)于接近換熱器(qi)封頭。
完(wan)成換熱器E-108、E-113和E-114的定位:蒸汽發生器E-108布置在(zai)E-107的東邊,它靠近(jin)泵(beng)P-107及相對(dui)地接(jie)近(jin)F-101。
要(yao)符合流程圖(tu)的(de)流向,水冷(leng)卻(que)器(qi)E-113緊靠E-104布置,使得E-101來的(de)配管距(ju)(ju)離最(zui)短。冷(leng)卻(que)器(qi)E-114位于(yu)E-108的(de)東邊,在控制室最(zui)小安全距(ju)(ju)離之外。
7. 壓縮機C-101及(ji)附屬設備的布(bu)置(圖5-100和(he)圖5-101)
壓縮機為往(wang)復式(shi)、兩(liang)段(duan)、電(dian)機驅動的雙缸對置式(shi)壓縮機,帶一、二段(duan)冷卻器,一臺,占地面積約5㎡。
甲方沒有提出建造壓(ya)縮機(ji)廠房的(de)要求(qiu)時,則壓(ya)縮機(ji)露(lu)天安裝(zhuang)。它和吸入罐V-104及V-105一起布(bu)置(zhi)在裝(zhuang)置(zhi)的(de)最(zui)西端。
因為氣體和二段冷(leng)凝液管線在(zai)“A”處進出裝(zhuang)置,壓(ya)縮機C-101布置在(zai)裝(zhuang)置邊(bian)界線附近是很理想的。
8. 泵的布置
圖5-100示出了管廊下泵的布置。
當(dang)管(guan)(guan)廊(lang)柱(zhu)間距為6m時,可安(an)裝兩臺中型泵,并有供電纜的(de)足夠空(kong)間。泵的(de)排出(chu)口位于管(guan)(guan)廊(lang)柱(zhu)中心線外(wai)側600mm(見(jian)圖5-102)。
原油(you)加(jia)料泵(beng)P-101位于裝置西邊界(jie)管線進(jin)出口(kou)附近。
泵P-103、P-105和P-108靠近(jin)有關設備(bei)T-101布置,分餾塔T-101及(ji)泵的(de)吸入管線要有一定的(de)柔性。
泵(beng)P-104、P-106布置在框(kuang)架下。
9. 油水分離器的布置(圖5-100)
油(you)水(shui)(shui)分離器(qi)是把烴類和雨水(shui)(shui)、消防水(shui)(shui)分離,然后用泵(beng)將烴送至廢油(you)罐(在裝置以(yi)外(wai))處理,分離器(qi)排出的(de)污(wu)水(shui)(shui)送至全廠污(wu)水(shui)(shui)處理系(xi)統。
場地西南角的(de)(de)尺寸和位置(zhi)布(bu)置(zhi)油水(shui)分(fen)離(li)器合適,理由如下:裝置(zhi)污水(shui)管(guan)要接至工廠已(yi)有(you)污水(shui)總管(guan),正(zheng)好(hao)在(zai)油水(shui)分(fen)離(li)器的(de)(de)南面;廢(fei)油管(guan)線理想的(de)(de)引出位置(zhi)在(zai)“A”點(dian),離(li)加熱爐(lu)F-101的(de)(de)距離(li)最遠。
六、管線走向研究圖(tu)
平(ping)面(mian)布置(zhi)圖(tu)(tu)供(gong)給(gei)各有關專業前(qian),根據管道(dao)-儀(yi)表流程圖(tu)(tu)畫管線走向圖(tu)(tu)以(yi)校(xiao)驗平(ping)面(mian)布置(zhi)圖(tu)(tu)。
①. 管線(xian)走向圖的(de)用途有(you):決定管廊的(de)寬度(du)和層數(shu);校(xiao)核(he)設(she)備布置和物料流向。
②. 管(guan)(guan)(guan)線(xian)走向(xiang)圖由(you)裝置設備布置設計者負責繪制。管(guan)(guan)(guan)線(xian)走向(xiang)圖由(you)一(yi)根根管(guan)(guan)(guan)線(xian)組成,管(guan)(guan)(guan)線(xian)走向(xiang)盡可能使(shi)距離(li)縮短,減少不必(bi)要的(de)繞行。通常,管(guan)(guan)(guan)廊(lang)的(de)走向(xiang)改變的(de),要改變標(biao)高(gao),圖上(shang)不必(bi)表示管(guan)(guan)(guan)子的(de)上(shang)升和下(xia)降。
管廊上的(de)(de)調節閥(fa)組、孔板(ban)和主要管線中的(de)(de)特(te)殊配件應表(biao)示(shi)出位置,以(yi)便(bian)校核(he)所需要的(de)(de)空(kong)間。
當管(guan)線走向(xiang)圖完成(cheng)后,應校(xiao)核管(guan)廊的寬(kuan)度,為(wei)今后的擴(kuo)建(jian),每一(yi)層管(guan)廊預留一(yi)定的余(yu)量。如果(guo)管(guan)廊的寬(kuan)度超(chao)過10m,通常改為(wei)雙(shuang)層管(guan)廊。
③. 管線走向圖應做到如下各點。
a. 管廊的寬度一般(ban)不超過10m。
b. 只有安(an)裝空(kong)冷器組的一段管廊(lang)需要(yao)雙(shuang)層的。
c. 為加熱爐F-101轉油線的支承,需設一單層管廊。
d. 在(zai)管廊(lang)上敷設電氣和(he)儀(yi)表電纜(lan),兩(liang)電纜(lan)槽之間要有1m的凈距。
e. 確定管(guan)廊橫梁(liang)的(de)標高。
f. 在管(guan)(guan)線進出(chu)(chu)口(kou)“A”處(chu)若為單(dan)層(ceng)管(guan)(guan)廊(lang)時,需增加管(guan)(guan)廊(lang)的(de)寬(kuan)度(du),在管(guan)(guan)線進出(chu)(chu)口(kou)“B”處(chu)為單(dan)層(ceng)管(guan)(guan)廊(lang)時,也需增加管(guan)(guan)廊(lang)的(de)寬(kuan)度(du)(去火炬(ju)干管(guan)(guan)除(chu)外)。
g. 確定從控制室來的電纜架的位置(zhi)。
h. 確(que)定冷(leng)卻水、循環水在裝(zhuang)置進出口的位置。
i. 完成裝置進(jin)出口管線表(biao),包(bao)括管線尺(chi)寸和流(liu)動介(jie)質(zhi)。
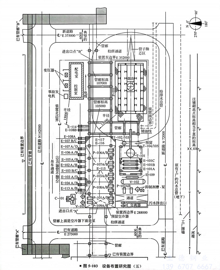
七(qi)、修(xiu)改并完(wan)成建(jian)議的平面布置圖
將建議的(de)平面布置(zhi)圖(tu)修改了,把管廊(lang)北面的(de)換熱器群南移(yi),使(shi)換熱器殼體的(de)一部分和封(feng)頭位(wei)于管廊(lang)下,因(yin)為附近沒有泵(beng)。圖(tu)5-103中(zhong)還(huan)表(biao)示了空冷器管束抽芯所需的(de)吊車通道。

為(wei)了保證裝置(zhi)檢修時(shi)吊車(che)能(neng)吊裝各種負荷,要校核吊車(che)的(de)荷載(zai)能(neng)否達到要求。
圖5-102是(shi)裝置的剖視圖,這張圖需要(yao)(yao)與甲方及施工單位結合,它進一步驗證了通道等(deng)檢(jian)修(xiu)條件是(shi)否滿足要(yao)(yao)求(qiu)。

圖5-104為用(yong)坐(zuo)標標注(zhu)平面(mian)布置圖的(de)實例:建、構(gou)筑物的(de)尺(chi)寸要以坐(zuo)標標注(zhu),設備的(de)安裝尺(chi)寸從(cong)有坐(zuo)標的(de)柱號標注(zhu)相對尺(chi)寸。


