浙江至德鋼業有(you)限(xian)公司技術人員(yuan)參加評(ping)審某設(she)(she)計時(shi),發(fa)現某固定直(zhi)爬(pa)梯沒有(you)設(she)(she)置護籠,不符合規(gui)范要求。
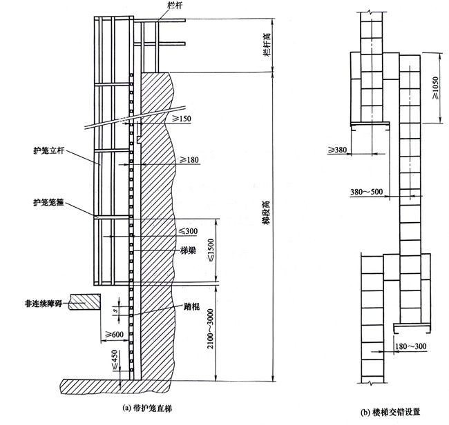
按(an)照SH/T 3011《石(shi)油化工工藝裝置(zhi)布(bu)置(zhi)設計規范》要求(qiu):高(gao)(gao)度(du)超過(guo)3m的直(zhi)(zhi)梯應(ying)設置(zhi)安全護籠,護籠下(xia)端(duan)距地面(mian)或平臺不應(ying)小于2.1m,護籠上(shang)端(duan)高(gao)(gao)出平臺面(mian),應(ying)與欄桿高(gao)(gao)度(du)一致。固(gu)定式鋼直(zhi)(zhi)梯示意(yi)圖見圖14.2。


GB 4053.1《固定(ding)式鋼(gang)梯(ti)及平臺安全要(yao)求(qiu) 第1部分:鋼(gang)直梯(ti)》的要(yao)求(qiu)如(ru)下(xia)。
①. 單段(duan)梯(ti)高宜不大于10m,攀(pan)登(deng)高度大于10m時(shi)宜采用多(duo)段(duan)梯(ti),梯(ti)段(duan)水(shui)平(ping)交錯布置,并設梯(ti)間(jian)(jian)平(ping)臺,平(ping)臺的垂(chui)直間(jian)(jian)距宜為6m。單段(duan)梯(ti)及多(duo)段(duan)梯(ti)的梯(ti)高均(jun)應不大于15m。
②. 梯段(duan)高度(du)(du)大于(yu)3m時宜設置安(an)全(quan)護籠。單(dan)梯段(duan)高度(du)(du)大于(yu)7m時,應(ying)設置安(an)全(quan)護籠。當(dang)攀登高度(du)(du)小于(yu)7m,但梯子頂(ding)部在(zai)地面(mian)、地板或(huo)屋頂(ding)之上高度(du)(du)大于(yu)7m時,也應(ying)設置安(an)全(quan)護籠。
③. 當護(hu)籠用于多段(duan)梯時,每(mei)個梯段(duan)應與相鄰的梯段(duan)水(shui)平交錯并有(you)足夠的間距(ju),設有(you)適當空(kong)間的安(an)全(quan)進、出引導平臺,以保護(hu)使用者的安(an)全(quan)。

